Mẫu Nhà Cấp 4 Mái Thái

Ngày nay với sự phát triển của xã hội, vật giá leo thang với nhiều người việc sở hữu một mảnh đất nhỏ đã là khó khăn chứ đừng nói đến việc mua đất làm ăn… Vì thế những mẫu nhà ống dần được thịnh hành kéo theo những loại mái mới chất lượng hơn, thẩm mỹ hơn được ra đời đó là nhà mái thái, hôm nay hãy cùng tìm hiểu về mẫu nhà mái thái này nhé!

Mẫu Nhà Cấp 4 Mái Thái
Mẫu Nhà Cấp 4 Mái Thái

Đây không phải là mẫu thiết kế nhà 2 tầng mái thái mới nhất, nhưng lại là mẫu nhà hiện đại và thu hút nhất nhì khu vực dân cư nơi đây. Bởi ngôi nhà của chị nổi bật, ai cũng ấn tượng và nhớ, rất dễ nhận ra trong hàng trăm mái nhà nơi đây.

Với diện tích lô đất khá rộng và dài 7x15m, chúng tôi thiết kế mẫu nhà mái thái 2 tầng đẹp theo hình chữ L để giúp cân đối với khối hình vuông vức của lô đất. Hình khối ngôi nhà khá đơn giản nhưng kiên cố và khỏe khoắn. Hệ thống trụ cột hình vuông được lưa chọn thay cho khối tròn, bởi sự vuông vắn sẽ giúp cho ngôi nhà trông bề thế hơn.

mau-nha-2-tang-mai-thai-dep

Mẫu thiết kế nhà mái thái 2 tầng đẹp tinh tế và độc đáo

Các đường phào chỉ được lựa chọn không có nhiều chi tiết hoa văn trang trí, tuy  nhiên cũng đủ để giúp cho mẫu nhà đẹp này đủ sức thu hút giác quan thị giác.

Hệ thống ban công mang đậm dấu ấn kiến trúc châu âu hiện đại, với những lan can chi tiết hoa văn uốn lượn đẹp mắt và được phun sơn tĩnh điện để tăng tính thẩm mỹ.

Ngôi nhà trông bề thế và khang trang hơn với hệ thống mái thái giật cấp được đổ hệ vì kèo thép, sau đó mới dán ngói. Đây là một trong những hệ mái có kỹ thuật thi công cầu kỳ và chiếm nhiều thời gian, tuy nhiên tính thẩm mỹ lại cao và đặc biệt là bền chắc tuyệt đối trước điều kiện thời tiết khí hậu năng mưa, gió bão thất thường ở Hải Phòng.

Khối giật cấp lớn cùng với độ dốc tương dối, mẫu mái giúp cho ngôi nhà thoát nước khá nhanh vào mùa mưa và mát mẻ vào mùa hè.

Thay vì lựa chọn cửa gỗ truyền thống, với mẫu thiết kế nhà mái thái 2 tầng đẹp hiện đại này, chúng tôi lựa chọn hệ thống cửa nhôm xingfa màu nâu cà phê hiện đại, đồng bộ với hệ thống cổng sắt tường rào của ngôi nhà. Với thiết kế đồng bộ từ hình khối cho tới nguyên vật tư cũng như màu sắc cuả hệ thống cửa bảo vệ, ngôi nhà thực sự hoành tráng và vững chắc hơn rất nhiều so với thực tế.

Không chạy theo thị hiếu xanh, đen, ghi, xám… chúng tôi giữ nguyên mái ngói đỏ truyền thống, để giúp cho ngôi nhà luôn như mới đồng thời lại có chút phảng phất không gian quen thuộc của cha ông. Chính tông màu này đã giúp cho ngôi nhà thêm nổi bật hơn khi hệ thống sơn tường được lựa chọn gam màu sáng trung tính.

Không hề có bất cứ thiếu sót nào trong mẫu thiết kế, ngôi nhà thực sự hoàn hảo từ thiết kế ngoại thất cho đến nội thất bên trong. Mỗi chi tiết đều được bố trí và sắp đặt hợp lý đến ngẫu nhiên. Sẽ không có gì là khó hiểu khi mẫu thiết kế nhà lại được nhiều người khen ngợi đến vậy.

Mặt bằng công năng sử dụng của mẫu nhà mái thái 2 tầng đẹp

ban-ve-mat-bang-tang-1-mau-nha-2-tang-mai-thai-dep

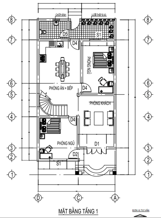
Mặt bằng tầng 1 mẫu nhà 2 tầng mái thái đẹp

Tầng 1 nhà mái thái 2 tầng đẹp được bố trí 1 phòng khách khá rộng ngay sau sảnh chính bước vào nhà, với bộ trường gỗ hiện đại và đẹp mắt, sẽ là nơi để anh chị đón tiếp những người bạn, người thân đến chơi nhà. Phía đối diện phòng khách là một phòng ngủ 13m2, được thiết kế dành riêng cho bố mẹ chồng chị Hiền. Nội thất phòng tuy đơn giản những khá tiện nghi, đáp ứng nhu cầu sinh hoạt giản dị của 2  ông bà.

Ngay bên cạnh là phòng ngủ của cậu con trai học lớp 12, đối diện phòng ngủ là phòng bếp ăn. Vì gia đình có khá nhiều thành viên nên đồ nội thất nhà bếp được bố trí khá khoa học, khu vực tam giác bồn rửa – khu lưu trữ thức ăn – khu nấu được tuân thủ nghiêm ngặt, tạo điều kiện thuận lợi nhất cho người nội trợ.

Do diện tích khá dài, nên chúng tôi có thiết kế sân sau có chiều rộng 2m, 1/2 diện tích được dành để thiết kế nhà vệ sinh chung, tắm giặt cho các thành viên, ngay bên cạnh là khoảng sân phơi quần áo và trồng tiều cảnh trang trí.

ban-ve-mat-bang-tang-2-mau-nha-2-tang-mai-thai-dep

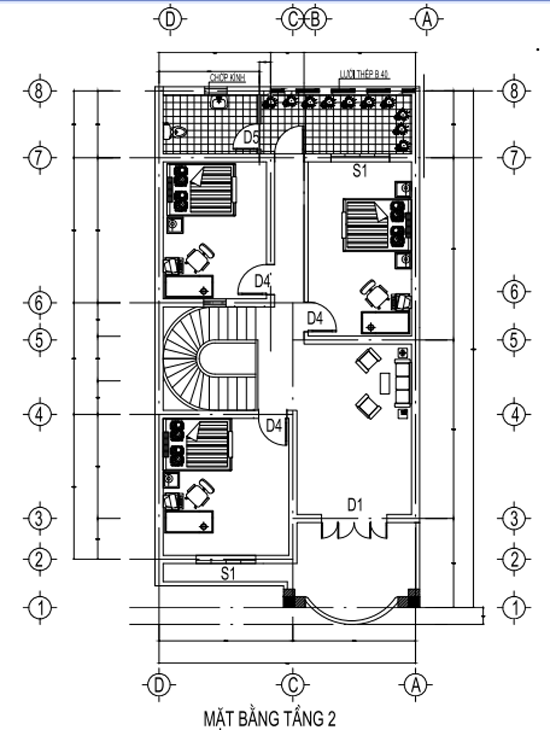
Mặt bằng tầng 2 mẫu nhà 2 tầng mái thái đẹp

Mặt bằng tầng 2 nhà mái thái 2 tầng đẹp được bố trí thiết kế 3 phòng ngủ. 1 phòng ngủ dành cho 2 vợ chồng chị Hiền, 1 dành cho cô con gái út của anh chị và 1 phòng dành cho chú út của gia đình. 3 phòng ngủ được thiết kế nội thất theo như phong cách, sở thích và công việc của từng chủ nhân căn phòng. Nhà vệ sinh chung được thiết kế cạnh phòng ngủ của vợ chồng chị Hiền. Để tiện cho các thành viên trao đổi trò chuyện sau mỗi bữa cơm ngon, một không gian sinh hoạt chung được thiết kế ngay cạnh 3 phòng ngủ. Đây là nơi để gía sách, kệ tivi cũng như những vật dụng trang trí, giúp cho ngôi nhà luôn ấm cúng và đủ đầy.

ban-ve-mat-bang-mai-mau-nha-2-tang-mai-thai-dep

Mặt bằng mái mẫu nhà 2 tầng mái thái đẹp

Lúc đầu ý định của chúng tôi là sẽ thiết kế phòng thờ riêng cạnh phòng sinh hoạt chung trên tầng 2, tuy nhiên ông bà lại muốn tích hợp với phòng khách để dễ bề hương khói lế tết. Anh chị đã chiều lòng bố mẹ, do đó bàn thờ được thiết kế chung với phòng khách, đây là phong tục tập quán khá phổ biến tại làng quê Việt Nam hiện nay.

Công trình nhà mái thái 2 tầng đẹp được hoàn công sau 4 tháng thi công. Công trình đã được tân gia và đưa vào sử dụng. Mọi hoạt động, sinh hoạt đều không có bất cập hay vướng mắc gì.

Gọi điện thoại
0839.177.234
Chat Zalo